Cabin ANNA -Caspar Schols | Image © Jorrit ‘t Hoen & Tonu Tunnel
Image © Jorrit ‘t Hoen & Tonu Tunnel

Text description provided by the team*

The internationally acclaimed cottage that architect Caspar Schols developed in 2016 on behalf of his own mother is ready for production. The new, versatile wooden house is a redesign that can now be offered anywhere in the world. Schols was looking for a concept that creates the connection between man, nature and home. Cabin ANNA offers the possibility to adjust the exterior layers to any occasion, mood or weather condition.

Cabin ANNA -Caspar Schols | Image © Jorrit ‘t Hoen & Tonu Tunnel
Image © Jorrit ‘t Hoen & Tonu Tunnel

Without any architectural education, Schols started his project after his mother asked him to design a garden house. A flexible space where she could read or paint, organize family dinners, and where her grandchildren could give theatre performances. “But above all the house had to bring her close to nature.” Schols says. His final design gained international attention and awards, including the Radical Innovation Award in New York.

Cabin ANNA -Caspar Schols | Image © Jorrit ‘t Hoen & Tonu Tunnel
Image © Jorrit ‘t Hoen & Tonu Tunnel
Cabin ANNA -Caspar Schols | Image © Jorrit ‘t Hoen & Tonu Tunnel
Image © Jorrit ‘t Hoen & Tonu Tunnel

Thanks to a scholarship, the Physicist was able to follow an extra study at the Architectural Association in London. “However educational my Physics studies were, this new study really felt like coming home,” Schols says. During his studies he found the challenge to further develop the house. “It was quite a challenge to turn the one-off design for my mother into a reproducible and affordable product. Cabin ANNA is now a fully habitable house or workplace that can be flexibly assembled and disassembled anywhere in the world. It’s fantastic that in the end it just worked out.”

Cabin ANNA -Caspar Schols | Image © Jorrit ‘t Hoen & Tonu Tunnel
Image © Jorrit ‘t Hoen & Tonu Tunnel

Flexible Like Clothes

The idea of Cabin ANNA came about from a desire to live with the elements of nature instead of completely shielding off from them. “Actually, it’s mainly about being outside. About creating the connection between you, your home and nature.” The house has two different ‘shells’ as outer walls, supported on rails. The inner wall consists of a framework of wood and glass and is separated from the roofed wooden outer wall. By shifting the shells, different setups are possible. “Just like you adjust your clothes to the weather, your mood or the occasion,” Schols continues.

Cabin ANNA -Caspar Schols | Image © Jorrit ‘t Hoen & Tonu Tunnel
Image © Jorrit ‘t Hoen & Tonu Tunnel

Improved Design

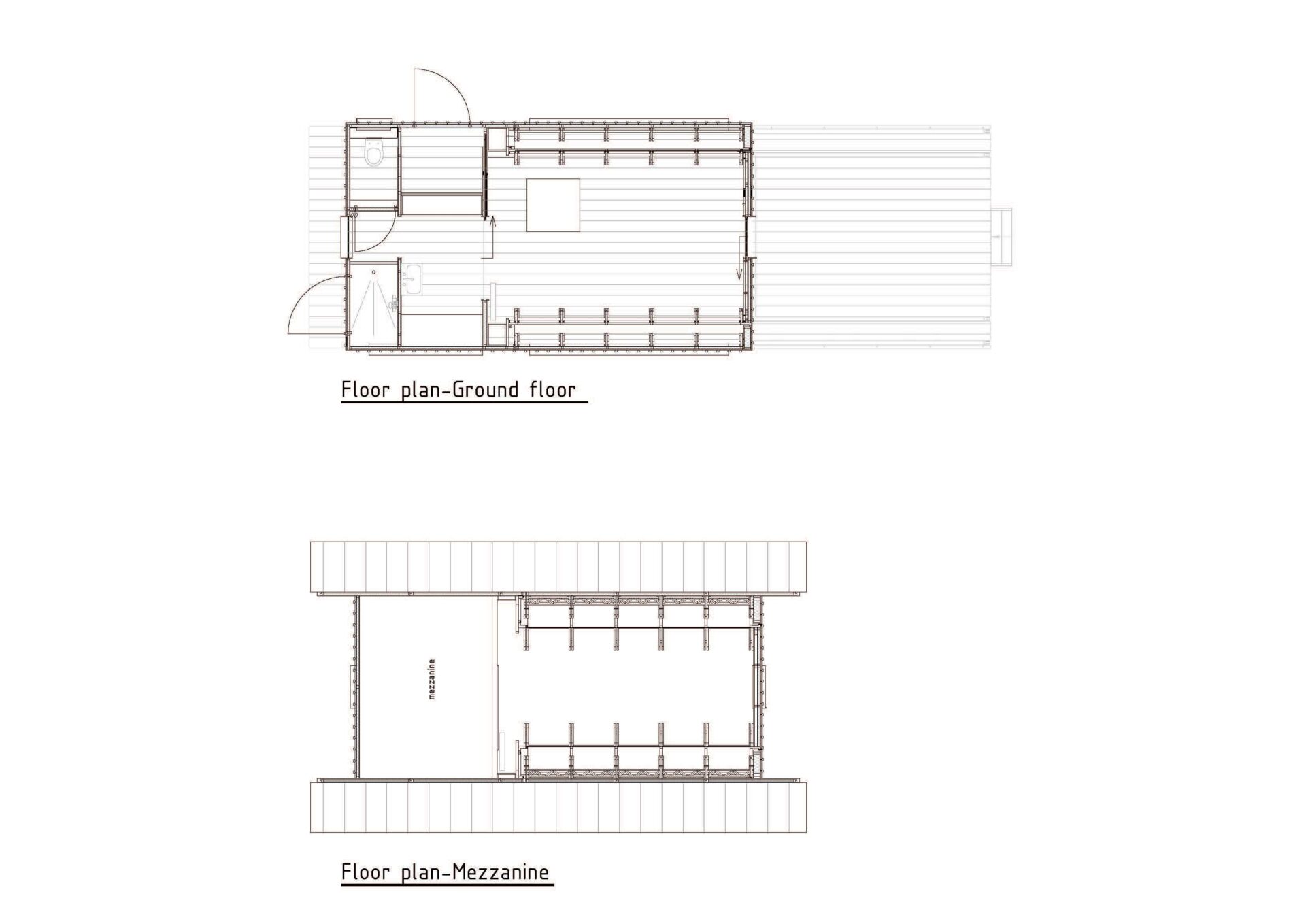
The original design has been further developed into ANNA Stay, aimed at short- or long-term occupancy. In that, ANNA Stay has two sliding shells instead of the original four. “But these walls are longer and cover more area,” Schols explains. “Now, there’s a fixed area with a kitchen, shower, toilet, and storage space. Above the kitchen we’ve created a mezzanine that provides space for a second double bed. This makes ANNA Stay suitable for a family of four or even four adults.”

Cabin ANNA -Caspar Schols | Image © Jorrit ‘t Hoen & Tonu Tunnel
Image © Jorrit ‘t Hoen & Tonu Tunnel
Cabin ANNA -Caspar Schols | Image © Jorrit ‘t Hoen & Tonu Tunnel
Image © Jorrit ‘t Hoen & Tonu Tunnel

The second model, ANNA Meet, has four movable shells, making the cabin flexibly usable for meetings, family gatherings, yoga classes or even as an office space.

Both models have been built with durable larch wood. On the inside, birch plywood has been used for high quality and a light colour. Horizontal windows offer a panoramic view, but prevent the house from quickly heating up.

Cabin ANNA -Caspar Schols | Image © Jorrit ‘t Hoen & Tonu Tunnel
Image © Jorrit ‘t Hoen & Tonu Tunnel
Cabin ANNA -Caspar Schols | Image © Jorrit ‘t Hoen & Tonu Tunnel
Image © Jorrit ‘t Hoen & Tonu Tunnel

The cabin is available off-grid and on-grid and can be delivered as a whole or as a flatpack, consisting of 26 parts and 14 steel pillars of 1.5m long. Using a mini electric crane, ANNA can be built with three persons in five days. The house can be disassembled in three days. All parts fit inside a normal truck and can be transported by land or by sea. 

Project Images
Project Videos

Social Media

GET THE NEWSLETTER TO YOUR INBOX

Recommended